giovedì
7
ottobre
venerdì
24
settembre
giovedì
7
ottobre
Occhio al territorio: La Basilica di Pianabella
Rubrica di approfondimenti
Torniamo a parlare di una interessante zona ricca di testimonianze archeologiche non lontana dalla pineta di Procoio (vedi post precedenti): Pianabella, con la sua Basilica paleocristiana, la Necropoli e la Chiesetta di S. Ercolano. Cominciamo proprio da quest’ultima e lasciandoci alle spalle l’abitato di Ostia Antica, imbocchiamo Via di Pianabella, la traversa di via di Castel Fusano che porta al cimitero moderno di Ostia Antica.
Qui sorge una piccola chiesa medievale dedicata a Sant’Ercolano, un soldato romano che secondo la leggenda sarebbe stato martirizzato con santa Aurea durante la persecuzione dell’imperatore Claudio il Gotico e sepolto successivamente a Porto.

Un tempo l’area della chiesetta faceva parte della grande necropoli suburbana di Ostia, per la quale le ricerche archeologiche hanno accertato una continuità d’uso dal I-II secolo d. C. fino al tardo Medioevo.
Proprio al I-II secolo d.C. risalgono le strutture funerarie ritrovate lungo il perimetro esterno dell’edificio, riutilizzate nel IV-V secolo per la costruzione della chiesetta. Si tratta di alcune sepolture “alla cappuccina”, cioè coperte con grosse tegole o mattoni disposti a forma di tetto a doppio spiovente. Le strutture funerarie furono riutilizzate anche nell’Alto Medioevo per la realizzazione di tombe parallele, disposte su più piani sovrapposti (formae).
L’attuale edificio di culto è il frutto di diverse fasi costruttive e si presenta come un’aula absidata realizzata con materiali di reimpiego e rivestimento in “opera listata”, tipico del IV-V secolo d.C., consistente in un rivestimento di mattoni e tufelli in filari alternati.
Sotto il pavimento attuale della chiesetta è testimoniata la continuità d’uso funerario che va dall’età romana fino al Medioevo e quasi ai giorni nostri. Infatti un ossario nella navata custodisce le spoglie di lavoratori romagnoli e soprattutto ravennati, giunti nel 1884 per bonificare gli stagni di Ostia, Fiumicino e Maccarese, come ricorda la lapide in piazza Umberto I a Ostia Antica.
Infine nel recinto esterno alla chiesetta sono stati sepolti archeologi e studiosi che con il loro lavoro hanno contribuito alla scoperta di Ostia Antica. Tra i tanti ricordiamo Dante Vaglieri (1865-1913), Guido Calza (1888-1946), Giovanni Becatti (1912-1973), Italo Gismondi (1887-1974) e Raissa Gourevitch (1894-1979) – (vedi post precedenti).
Proseguendo lungo via di Pianabella, oltre il cimitero di Ostia Antica si raggiunge un’ampia area agricola, che, a partire dal II sec. d.C. circa, ebbe un utilizzo cimiteriale. Essa infatti costituì l’espansione verso est della vastissima Necropoli Laurentina , indagata solo in minima parte. Questa necropoli, era connessa alla rete più o meno regolare di strade che servivano i campi o si dirigevano verso la costa e lungo queste strade si disponevano le sepolture della città a partire dai luoghi più prossimi alle mura urbane.

La Necropoli di Pianabella era dunque un vasto sepolcreto, utilizzato fino al IV secolo d.C., la cui importanza è testimoniata da vari ritrovamenti, tra i quali un raffinato sarcofago con scene di centauromachia (prima metà del II secolo d.C.), oggi conservato al Museo Ostiense, e una tomba d’età imperiale con pregevoli urne e sarcofagi.

Nella necropoli era presente anche un “colombario”, ossia un grande ambiente con sepolture poste in tante nicchie ricavate nelle pareti. Questo edificio di prima età imperiale ospitò nel tempo vari tipi di sepolture, sia a incinerazione (in urne) sia a inumazione; in quest’ultimo caso poteva trattarsi di sarcofagi, fosse o tombe “alla cappuccina”. Oggi la zona è caratterizzata dalla presenza di cinque dossi paralleli che tagliano l’area da nord-est a sud-ovest e che forse ricalcano antiche vie cimiteriali interne (i dossi sono infatti formati dal crollo delle tombe costruite sui lati delle strade)
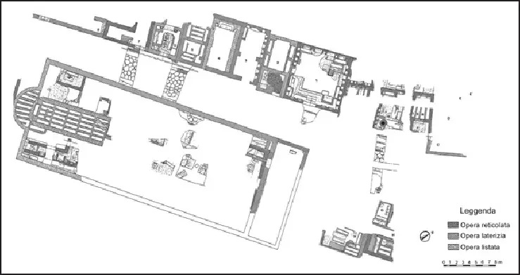
Sempre lungo Via di Pianabella, sulla destra, a pochi metri dalla ferrovia Roma-Lido, un settore della necropoli fu in parte distrutto dalla costruzione di una basilica funeraria paleocristiana tra la fine del IV e gli inizi del V secolo d.C..
La Basilica di Pianabella, fu scoperta casualmente nel 1976, in seguito a scavi clandestini, fu oggetto di varie campagne di scavo e venne successivamente ricoperta per garantirne la conse

rvazione; si trattava probabilmente del più importante monumento del suburbio ostiense. Fiancheggiata da una strada basolata, era un edificio a navata unica absidata, preceduto da un avancorpo fortificato. L’aula (43,30 x 16,20 m.) fu costruita ex novo in opera listata, mentre per la costruzione del nartece e dell’atrio quadrangolare si riutilizzarono le strutture preesistenti relative ai mausolei più antichi.

L’elemento che caratterizza questa costruzione, è la grande struttura sepolcrale (12,15 x 4,70m.), presente all’interno della chiesa, in asse con la zona presbiteriale. Una sorta di “recinto funerario” nel quale furono ricavate venticinque strette casse in muratura, ognuna con quattro piani, per un totale di un centinaio di formae (sepolture a inumazione disposte su più ordini sovrapposti); In più, altre sette formae furono costruite anche nell’abside vero e proprio. L’utilizzo funerario della chiesa è accertato fino al IX secolo quando, con l’abbandono della necropoli circostante, le attività di culto si spostarono nel Borgo di Ostia Antica intorno alla chiesa di Santa Aurea.
Redatto da Mariagrazia Pirrone
Per i contenuti e le immagini si ringrazia:
@Parco archeologico di Ostia Antica
(Ins. 21/09/2021 - Don-Zap.)

